Vnitřní plocha: 4,67 m²

Dřevo: Borové dřevo

Výška: 3180 mm

Tloušťka stěny: 145 mm

Tloušťka podlahy: 178 mm

Střecha: 18 mm borové obložení zvenčí a 14 mm vnitřní borové obložení se 100 mm izolací z kamenné vlny mezi, pokryto tmavě hnědou bitumenovou krytinou membrány

  • Střecha
  • Podlaha
  • 2m hliníkové posuvné dveře
  • 4 izolované celopanelové stěny
  • 2 vitríny
  • Parapety
  • Vnější dokončovací desky
  • Uvnitř dokončovací desky
  • Kování

Rozměr palet (ŠxDxV): 

1p (? x ? x ?) ? kg

sadafafafa

Plán

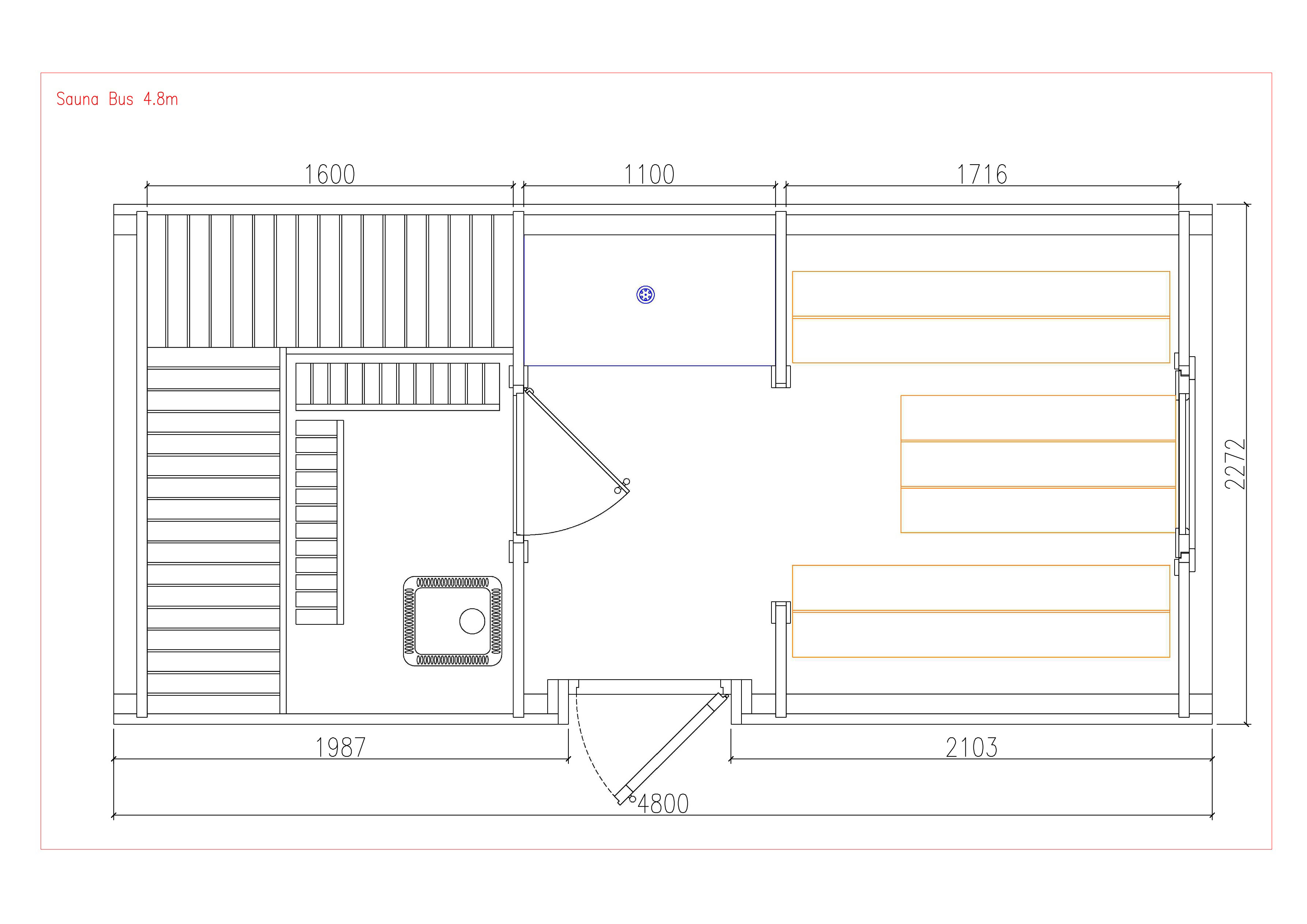
SAUNOVÝ BUS 

2,3 x 4,8 m

Velikost:  6 - 8 osoby

Místnost: 2

Vnitřní plocha: 8,83 m²

Vnější rozměry: 2,3 m x 4,8 m

Výška: 2,6 m

Dřevo: borové dřevo nebo termodřevo

Tloušťka stěny:  46 mm

Tloušťka podlahy:  28 mm

Povrchová úprava střechy:  Finské bitumenové šindele


Dveře:

• Venkovní dřevěné dveře: 700 x 1800 mm

• Prosklené dveře sauny: 620 x 1750 mm


Okna:

• Saunová okna (2 jednotky): 295 x 580 mm

Pavilon: 1020 x 1060 mm

  • Dřevěné autobusové stěny
  • Stahovací pásky z nerezové oceli
  • Střecha pokryta bitumenovým šindelem
  • Podlaha z 28 mm desek z borového dřeva
  • Dřevěné dveře s dvojsklem, dřevěnou klikou a zámkem
  • 2 temperovaná okna s dvojitým zasklením v sauně
  • Dveře z tvrzeného tónovaného skla oddělující saunu a šatnu
  • 2 lavice (úhlové nebo rovné) uvnitř sauny vyrobené z osiky nebo černé olše
  • 2 přenosné lavice pro nohy (v sauně s úhlovými lavicemi)
  • Tepelně odolné desky pro topidlo/sporák

Rozměr palety (DxŠxV):

1p (4,9 x 1,2 x 1,2) 2700 kg


Rozměr sestaveného autobusu (DxŠxV):

(4,9 x 2,4 x 2,6) 2700 kg

Copyright © , marivox.cz

Marian Kovařík

Marivox.cz s.r.o., Huslenky 616, 756 02

Marian Kovařík

Marivox.cz s.r.o.

Huslenky 616, 756 02

Copyright © , marivox.cz

DIČ: CZ05641128

e-mail: info@marivox.cz

mobil: +420 608 476 616