Vnitřní plocha: 4,67 m²

Dřevo: Borové dřevo

Výška: 3180 mm

Tloušťka stěny: 145 mm

Tloušťka podlahy: 178 mm

Střecha: 18 mm borové obložení zvenčí a 14 mm vnitřní borové obložení se 100 mm izolací z kamenné vlny mezi, pokryto tmavě hnědou bitumenovou krytinou membrány

  • Střecha
  • Podlaha
  • 2m hliníkové posuvné dveře
  • 4 izolované celopanelové stěny
  • 2 vitríny
  • Parapety
  • Vnější dokončovací desky
  • Uvnitř dokončovací desky
  • Kování

Rozměr palet (ŠxDxV): 

1p (? x ? x ?) ? kg

sadafafafa

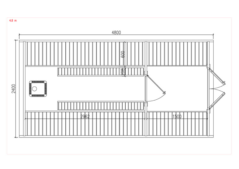
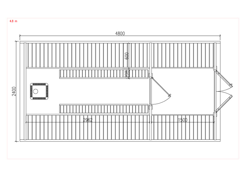
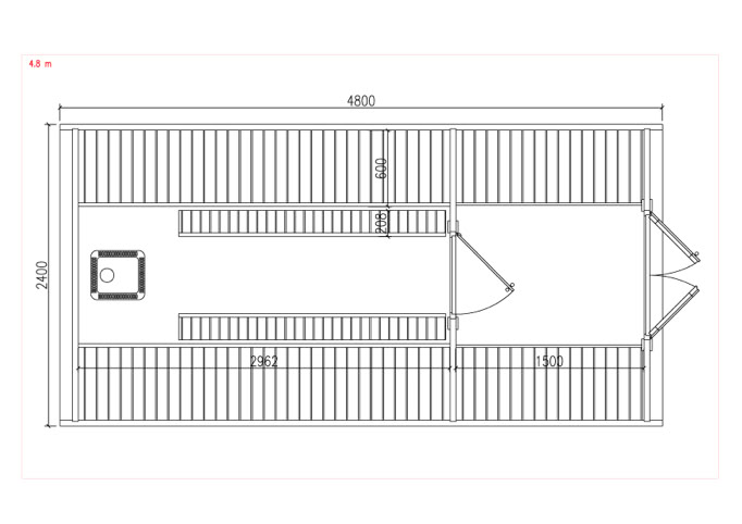
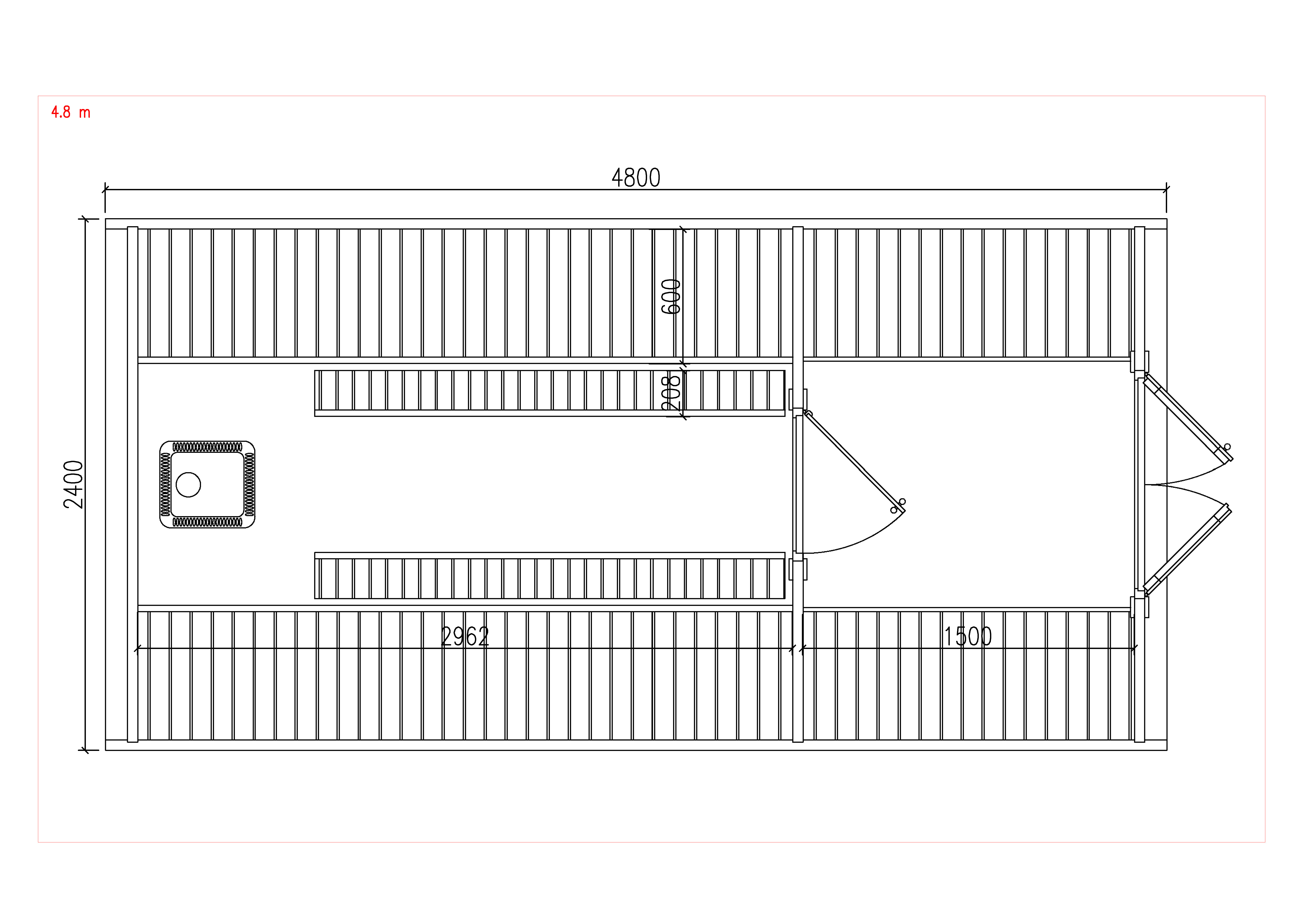
Plán

SAUNOVÝ BOX 

2,4 x 4,8 m

Velikost:  4-6 osoby

Místnost:  2

Vnitřní plocha:  10,4 m²

Vnější rozměry: 2,4 m x 4,8 m

Výška: 2,6 m

Dřevo: borové dřevo nebo termodřevo

Tloušťka stěny:  46 mm

Tloušťka podlahy:  28 mm

Povrchová úprava střechy:  

Finské bitumenové šindele

Rozměr dveří:  1030 x 1900 mm

Okna (2 jednotky): 

Tvrzená dvojitá skla, 295 x 580 mm

Šatna: 1,5 m

  • Stěny pokryty bitumenovým šindelem
  • Dvojité skleněné dveře ve francouzském stylu se standardní klikou a zámkem
  • Podlaha vyrobená z 28 mm desek z borového dřeva
  • Šatna s dveřmi z tvrzeného tónovaného skla (možné i bez šatny)
  • 2 temperovaná okna s dvojitým zasklením v sauně
  • 2 lavičky uvnitř sauny a šatny
  • 2 přenosné lavičky na opěrku nohou
  • Tepelně odolné desky pro topidlo/sporák

Dostupné barvy střechy:

Opěrka hlavy

Dřevěné vědro

24litrová nádrž na vodu pro topidla na dřevo

Ochranný plot

Odpočinek zad

Ramínko na šaty

Kryt světla do sauny

Světlo do sauny

Teploměr-vlhkoměr

Dřevěná naběračka

Rozměr palet (ŠxDxV): 

1p (4,9 x 1,2 x 1,2) 2200 kg


Rozměr sestaveného pouzdra (DxŠxV):

(4,9 x 2,4 x 2,6) 2200 kg

Copyright © , marivox.cz

Marian Kovařík

Marivox.cz s.r.o., Huslenky 616, 756 02

Marian Kovařík

Marivox.cz s.r.o.

Huslenky 616, 756 02

Copyright © , marivox.cz

DIČ: CZ05641128

e-mail: info@marivox.cz

mobil: +420 608 476 616