MO-DŮM
2,3 x 6,0 m
Marian Kovařík
Marivox.cz s.r.o.
Huslenky 616, 756 02
Spisová značka C 84007/KSOS Právnická osoba zapsaná v obchodním rejstříku vedeném u Krajského soudu v Ostravě od 19. prosinec 2016
Skladem - Finská sauna venkovní
Skladem - Tiny House 2,3 x 6 m - 568.000,- Kč
Skladem - Koupací sud Ø 200 cm - 49.000,- Kč
Skladem - Koupací sud Marivox s nerez vložkou
+420 608 476 616
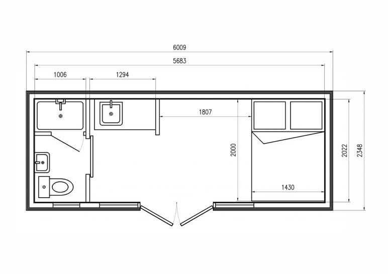
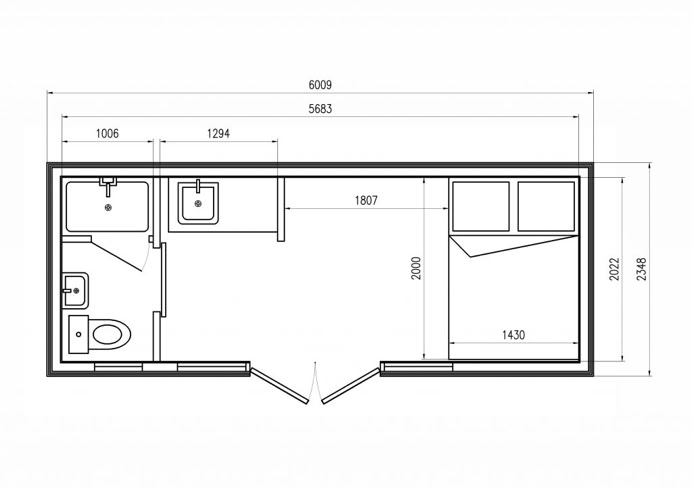
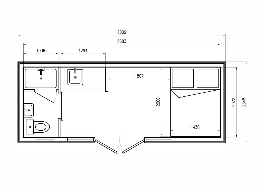
Vnitřní plocha: 11,4 m²
Velikost: 2-4 osoby
Dřevo: Borové dřevo
Rozměr okna: Okna u dveří 735×1955 mm
Okno WC 410x1150 mm
Rozměr dveří: 1480 x 2000 mm
Stěna:
Izolace: 100 mm (kamenná vlna)
Panel opláštěný vnitřní 14 x 96 mm
a vnější 18 x 145 mm obkladovými deskami z borového dřeva
Tloušťka hotového stěnového segmentu:
145 mm
Podlaha: Borové dřevo: 28 mm
Tloušťka zateplené podlahy: 158 mm
Izolace z kamenné vlny: 100 mm (střecha, podlaha, stěny)
Střecha: Bitumenový nátěr
ÚVOD
MODELY
Spisová značka C 84007/KSOS
Právnická osoba zapsaná v obchodním rejstříku vedeném u Krajského soudu
v Ostravě od 19. prosinec 2016
KONTAKT
+420 608 476 616
Skladem - Domácí parní sauna mini - NOVINKA
Skladem - Akrylátová venkovní vířivka